Dự án chung cư N03T1 Ngoại giao đoàn là tòa nhà được xây dựng trên lô đất N03 của dự án khu Ngoại giao đoàn. Tòa nhà nằm ở vị trí trung tâm đắc địa nhất của dự án khi tọa lạc trên mặt đường đôi Nguyễn Văn Huyên kéo dài từ Hoàng Quốc Việt đi qua dự án lên Ciputra với tầm view toàn bộ công viên hồ điều hòa, đại sứ quán, công viên Hòa Bình và toàn bộ khu N01 của dự án. Với tầm nhìn 3 mặt thoáng và gần như không bị che chắn bởi tòa nào, tòa nhà NO3T1 được đánh giá là một trong những tòa có vị trí đẹp nhất trong dự án.
THÔNG TIN TỔNG QUAN DỰ ÁN
+ Chủ đầu tư: Công ty cổ phần thi công cơ giới xây lắp
+ Đơn vị thi công: Công ty cổ phần thi công cơ giới xây lắp
+ Đơn vị thiết kế: Công ty cổ phần tư vấn đầu tư xây dựng phát triển đô thị Hà Nội (HACID)
+ Đơn vị thẩm tra: Công ty tư vấn Đại học Xây Dựng
+ Tư vấn giám sát: Công ty CP tư vấn - thiết kế - xây dựng kinh doanh nhà
Quy mô xây dựng:
+ Số tầng :25 tầng nổi + 2 tầng hầm
+ Diện tích khu đất : 3.743m2
+ Diện tích xây dựng : 1.252m2
+ Diện tích sàn xây dựng : 32.050m2
+ Diện tích sàn tầng hầm : 6.482m2
+ Diện tích căn hộ/tầng : 1.002m2
+ Mật độ xây dựng : 35%
+ Bố trí căn hộ : 10 căn/tầng

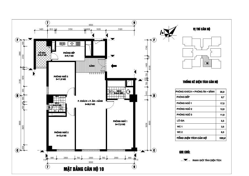
THIẾT KẾ MẶT BẰNG CĂN HỘ

Mặt bằng tầng điển hình











TIẾN ĐỘ THANH TOÁN
– Đợt 1: vào tên hợp đồng đóng 45% giá trị hợp đồng
– Đợt 2: Đóng 5% giá trị hợp đồng thi công xong phần thô tầng 10
– Đợt 3: Đóng 5 % giá trị hợp đồng thi công xong phần thô tấng 14
– Đợt 4: Đóng 5% giá trị hợp đồng thi công xong phần thô tấng 18
– Đợt 5: Đóng 5% giá trị hợp đồng thi công xong phần thô tấng 22
– Đợt 6: Đóng 5% khi đổ mái tòa nhà
– Đợt 7: Đóng 10% sau khi đổ mái xong 2 tháng
– Đợt 8: 10% sau khi thi công xong bê tông mái khoảng 4 tháng
– Đợt 9: 5% sau khi thi công xong bê tông mái khoảng 6 tháng
– Đợt 10: 5 % giá bán + 2 % phí bảo trì trước khi bàn giao căn hộ 1 tháng
Khu đô thị 54 Hạ Đình được đầu tư phát triển bởi Công ty CP Thi công Cơ giới Xây Lắp. Dự án đáp ứng nhu cầu sinh hoạt và làm việc cho các cư dân với vị trí đắc địa, hạ thống hạ tầng hoàn thiện, đồng bộ.
Dự án bất động sản mang tên C1 C2 Xuân Đỉnh là tác phẩm của Công Ty CP Thi Công Cơ Giới Xây Lắp. Dự án được xây dựng lên bao gồm có hai tòa nhà sang chảnh vả rất hiện đại .
Công ty Cổ phần thi công cơ giới xây lắp là công ty có quy mô trung bình trong ngành xây dựng với doanh thu năm 2013 đạt 248 tỷ đồng